
NYBYGD BOLIGKOMPLEKS I SAN MIGUEL DE SALINAS
Moderne leiligheter i San Miguel de Salinas.
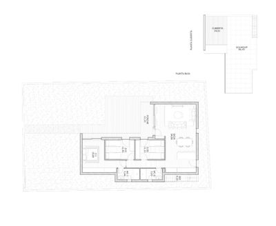
Boligen
Moderne villaer laget for å nyte den spanske solen.
Villaer over 1 etasje, har 3 soverom, 2 bad, åpen kjøkkenløsning med romslig stue, garderober, terrasse og privat takterrasse.
Hver villa har en selvstendig tomt med parkeringsplass. Muligheter for privat basseng mot en ekstra kostnad.
Beliggenhet
San Miguel de Salinas ligger nær golfbanene Las Colinas og Campoamor, og tilbyr eksepsjonell utsikt over lagunene Torrevieja og La Mata.
San Miguel de Salinas er en kommune helt sør i provinsen Alicante.
I nærheten
Boligkomplekset ligger 35 minutter fra Alicante flyplass.
951 98 303