
NYBYGD BOLIGKOMPLEKS I VILLAJOYOSA
Nybygget boligkompleks med leiligheter og toppleiligheter med 2 og 3 soverom, terrasser, fellesområde med basseng.
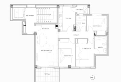
Boligen
Keramiske gulv- og veggfliser inne i huset, og ute på terrasser og fellesarealer.
Forsterket sikkerhetsinngangsdør, innvendige dører og innebygde garderober.
Fullt utstyrte bad og/eller toaletter; integrert wc, møbler, kraner, dusjkar, glassskjerm og speil.
Pre-installasjon av kanalisert varmt/kaldt klimaanlegg.
Bolig kvalifisert med høy energieffektiv avsugsinstallasjon.
Alle leilighetene leveres med parkeringsplass, noen enheter med bod inkludert og andre med valgfri bod.
Beliggenhet
Villajoyosa er historie, natur og hav. Hver av sivilisasjonene som har gått gjennom dette landet; Egyptiske gjenstander brakt av fønikerne, en iberisk helligdom, det største romerske skipet som ble gravd ut i Middelhavet. En historie som alltid har vært påvirket av havet.
Langs hele den 12 kilometer lange kystlinjen til denne fiskerlandsbyen på Costa Blanca.
Villajoyosa er også kjent for sitt deilige Valor sjokoladefabrikkmuseum.
I nærheten
Boligkomplekset ligger 900 meter fra sjøen, 950 meter fra kjøpesenteret. 1,5 km fra gamlebyen i Villajoyosa, 15 minutter fra Benidorm og 35 minutter fra Alicante flyplass
951 98 303